Speak to us via Skype

Large unfurnished office space with 2 parking spaces

This property is currently unavailable for renting.

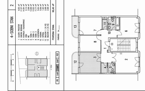
This is a spacious, modern office space placed on the 2nd floor of a 3-storey building which was constructed in 2002. It is situated on a very attractive position inside Vrbik with views of a courtyard which secures total peace and quiet needed. The office is 96.46 sq m in size and comprises a hall, 4 rooms, kitchen with a dinning room, bathroom, toilet, 2 storages and 2 balconies with views of the courtyard too. There are 2 secured parking places. The office has classic parquets and tailings, gas central heating, telephone connection and antenna. In the bathroom there is a bath, toilet, sink and bide. In the toilet there is only a toilet seat. The office is ready for immediate occupation.

Yes (5)

None

N/A

Can Install

None

Yes

Yes (1)

Yes (1)

No

Can Install

None

Yes

None

Yes

Yes

Yes

Property Details

RIZO500

Office

Trnje

Vrbik

5

96.00

Yes

No

800.00€ monthly
(5,900 KN)

Agency Terms and Conditions apply.

Enter your details to request more info.