Speak to us via Skype

Modern and fully furnished 2-bed apartment in Vrbik

This property is currently unavailable for renting.

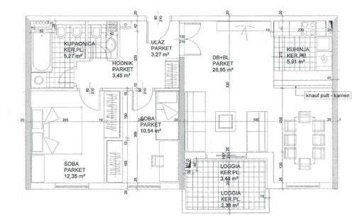
This property is placed on 4th floor in 5-storey building and has approx 73 sq m of living space. It has one double bedroom, one single bedroom/study, and open plan fully equipped kitchen with balcony, bathroom and single toilet. The property is equipped with central gas heating, air-condition, washing machine, dishwasher, and internet connection. One garage space is reserved.

Yes (1)

1

N/A

Yes

Yes (1)

Yes

Yes (1)

Yes (1)

No

Yes

None

Yes

None

Yes

No

Yes

Property Details

RIZA757

Apartment

Trnje

Vrbik

2

74.00

Yes

Yes

900.00€ monthly
(6,630 KN)

Agency Terms and Conditions apply.

Enter your details to request more info.





Property Map

Map View